Library and academic facilities (Fletcher Priest, 2016)
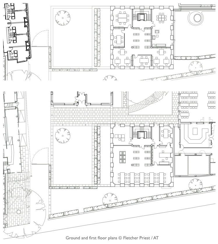
This bold new building on the Woodstock Road dominates first impressions of St Anne’s College, displacing the Founder’s Tower (HKPA, 1966, dem. 2015) but opening a view of the neo-Georgian Hartland House (Giles Gilbert Scott, 1938), the College’s original library. A four storey timber structure is encased in a 16 m masonry cube, clad in locally sourced limestone. In context it appears massive and strong, and in one critic’s words, “ruthlessly simple in form”. In part this reflects the demands of the brief for a building with a potential 400-year lifespan, built for flexibility and adaptability: the plan is divided into a 3 x 3 square grid, with one square providing a generous stairwell and the others capable of reconfiguration, limited only by four internal columns. With floor to floor dimensions of over 4 m, the proportions challenge expectations of this building type, contrasting with the existing buildings and uses on the College site and the immediate surroundings.
In practical terms, the building currently provides three floors of library space, a below ground reading room plus the plant room, and one floor of office space for research groups at the top. It connects to newly-landscaped external spaces including a roof deck over the College kitchens (Fletcher Priest, 2012), a sunken patio, and two small garden squares, all part of the same architects’ masterplan.
References: Tim Abrahams, ‘Library Bookend’, Architecture Today [http://www.architecturetoday.co.uk/library-bookend/]
Woodstock Road, Oxford OX2 6HS


