NEW OXFORD ARCHITECTURE

a guide to architecture in Oxford since 2000

Main Menu

Skip to content
  • About
  • Oxford University
    • Andrew Wiles Building (Mathematical Institute)
    • Ashmolean Museum Extension
    • Beecroft Building (Physics)
    • Blavatnik School of Government
    • Bodleian Weston Library
    • Castle Mill (Phase 2)
    • Chemistry Research Laboratory
    • Earth Sciences Department
    • e-Research Centre
    • Information Engineering Building
    • Manor Road Building
    • New Biochemistry Building
    • Old Road Campus
    • Oxford Molecular Pathology Institute (OMPI)
    • Radcliffe Observatory Quarter (ROQ)
    • Rothermere American Institute
    • Ruskin School of Art – Bullingdon Road Studios
    • Sackler Library
    • Saïd Business School
  • Oxford University Colleges A – P
    • Balliol College – Jowett Buildings
    • Balliol College – Master’s Field Project
    • Corpus Christi College – MBI Al Jaber Building
    • Christ Church College – Visitor Centre
    • Exeter College – Cohen Quadrangle
    • Harris Manchester College – Siew-Sngiem Clock Tower and Sukum Navapan Gate
    • Hertford College – The Graduate Centre
    • Keble College – Sloane Robinson Building
    • Keble College – H B Allen Centre
    • Lady Margaret Hall – New Era Project: Pipe Partridge Building
    • Lady Margaret Hall: New Era Project – Clore Graduate Centre, new entrance and Porters’ Lodge
    • Linacre College – Griffiths Building
    • Lincoln College – EPA Science Centre
    • Lincoln College – Berrow Foundation Building
    • Magdalen College – Longwall Library
    • Mansfield College – East Range Kitchens
    • Merton College – Finlay Building
    • Merton College – T S Eliot Theatre
    • Merton College – Warden’s Lodgings remodelling
    • Oriel College – Rhodes Building extension
    • Pembroke College – Rokos Quad
  • Oxford University Colleges Q – W
    • The Queen’s College – Schulman Auditorium
    • The Queen’s College – Library and Archive
    • St Anne’s College – Ruth Deech Building
    • St Anne’s College – Tim Gardam Building (Library and Academic Centre)
    • St Anthony’s College, Ghassan Shaker Building and Gateway Building
    • St Anthony’s College – Investcorp Building (Middle East Centre)
    • St Catherine’s College – The Ainsworth Graduate Centre
    • St Cross College – West Quad
    • St Hilda’s College- Pavilion and Anniversary Building
    • St Hugh’s College – Dickson Poon University of Oxford China Centre Building
    • St John’s College – Kendrew Quad
    • Somerville College – ROQ Accommodation Buildings
    • Somerville College – Catherine Hughes Building
    • University College – Boathouse
    • Wadham College – McCall MacBain Graduate Centre
    • Wadham College – Dr Lee Shau Kee Building and William Doo Undergraduate Centre
    • Wadham College – The Dorothy Wadham Building
    • Wolfson College – Leonard Wolfson Auditorium and Academic Wing
    • Worcester College – Earl Building and Ruskin Lane Building
    • Worcester College – Sultan Nazrin Shah Centre
  • Oxford Brookes University
    • Oxford Brookes University – John Henry Brookes Building and Abercrombie Building
    • Oxford Brookes University – Clerici and Sinclair buildings refurbishment
  • Schools & Colleges
    • Oxfordshire County Council schools
    • Independent Schools
    • Ruskin College – Callaghan Library
  • Social, Cultural, Health & Religion
    • Churchill Hospital – Cancer Centre
    • The Earth Trust – Innovation Hub
    • First Church of Christ Scientist – Reading Room
    • Florence Park Family Centre
    • John Radcliffe Hospital – Wolfson Building
    • Maggie’s Oxford at the Patricia Thompson Building
    • Oxford Centre for Islamic Studies
    • Ripon College, Cuddesdon – Bishop Edward King Chapel
    • St Edward’s School – North Wall Arts Centre
    • Youlbury Scout Activity Centre – Centenary Lodge
  • Commercial
    • Oxford Science Park
    • Westgate Oxford
  • Private Residential
    • Alice House
    • Hill Top House
    • River Spire View (formerly Luther Court)
    • Sandpath
  • New
  • On site/in pipeline
  • Map
  • Sources & Credits
  • Photo Gallery
  • Comments

dwgs floor 3 mba

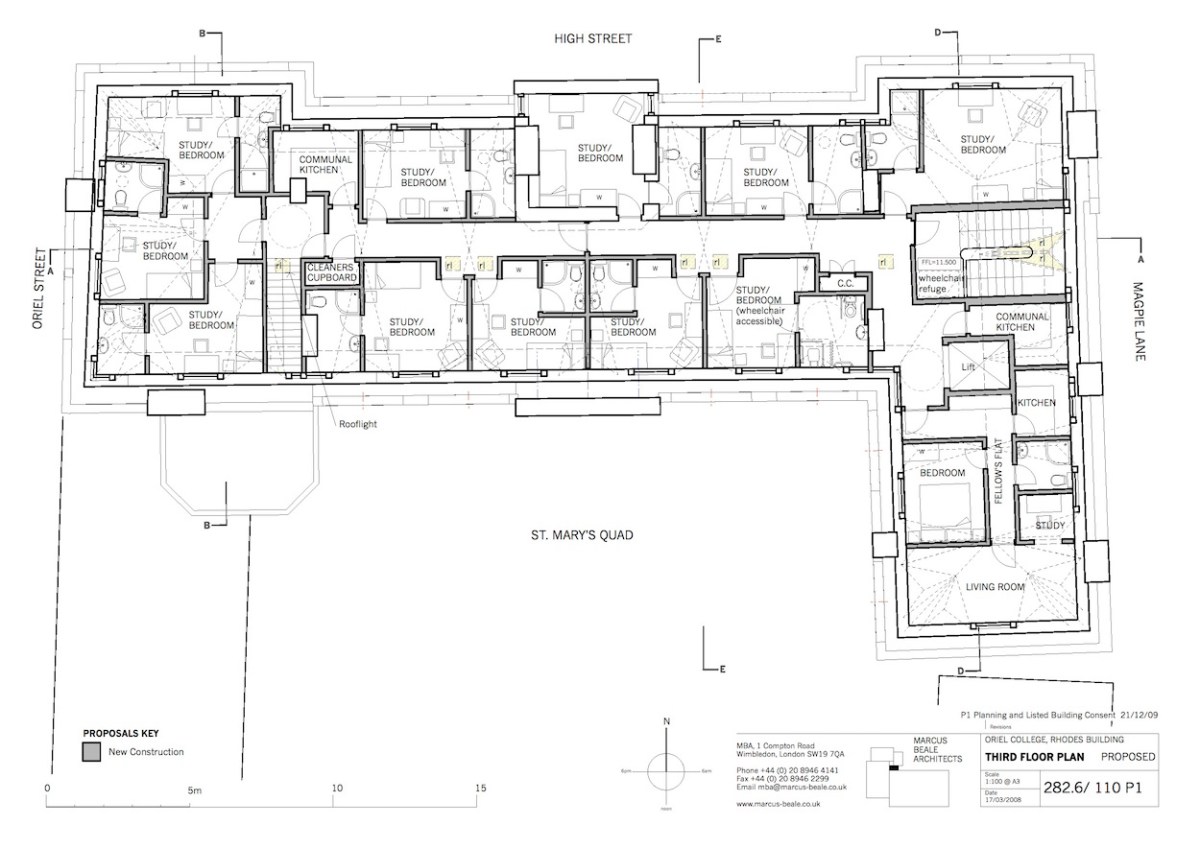
Published Oct 13, 2015 at 1250 × 884 in Oriel College – Rhodes Building extension
← Previous

Plan of new third floor © Marcus Beale Architects

Both comments and trackbacks are currently closed.
© Copyright 2015-21 Tim Brindley All rights reserved
Blog at WordPress.com.
  • Map
  • Subscribe Subscribed
    • NEW OXFORD ARCHITECTURE
    • Already have a WordPress.com account? Log in now.
    • NEW OXFORD ARCHITECTURE
    • Subscribe Subscribed
    • Sign up
    • Log in
    • Copy shortlink
    • Report this content
    • View post in Reader
    • Manage subscriptions
    • Collapse this bar